Město Přelouč - Zjednodušená verze stránek
Nastavení velikosti písma
+

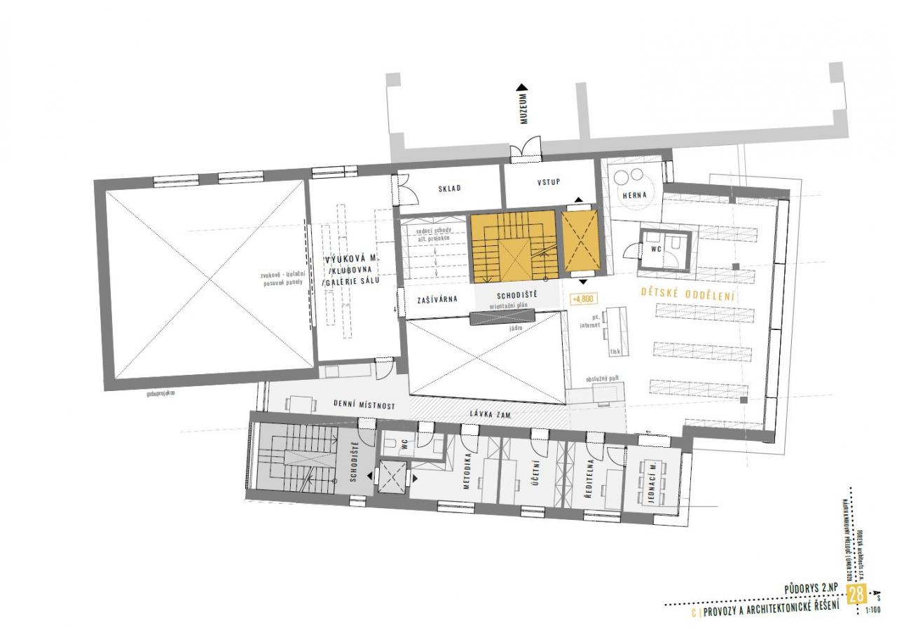
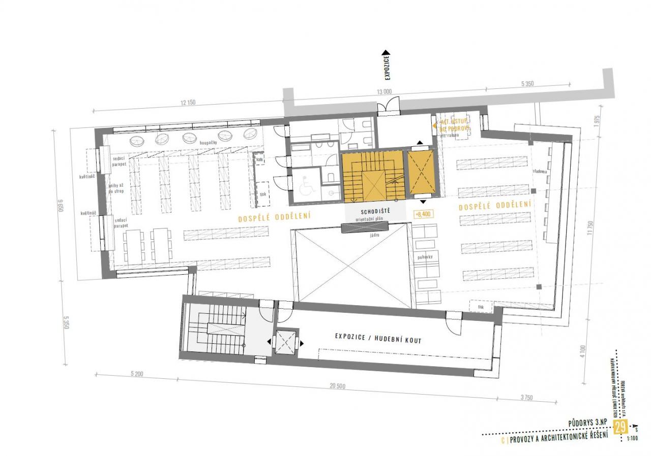
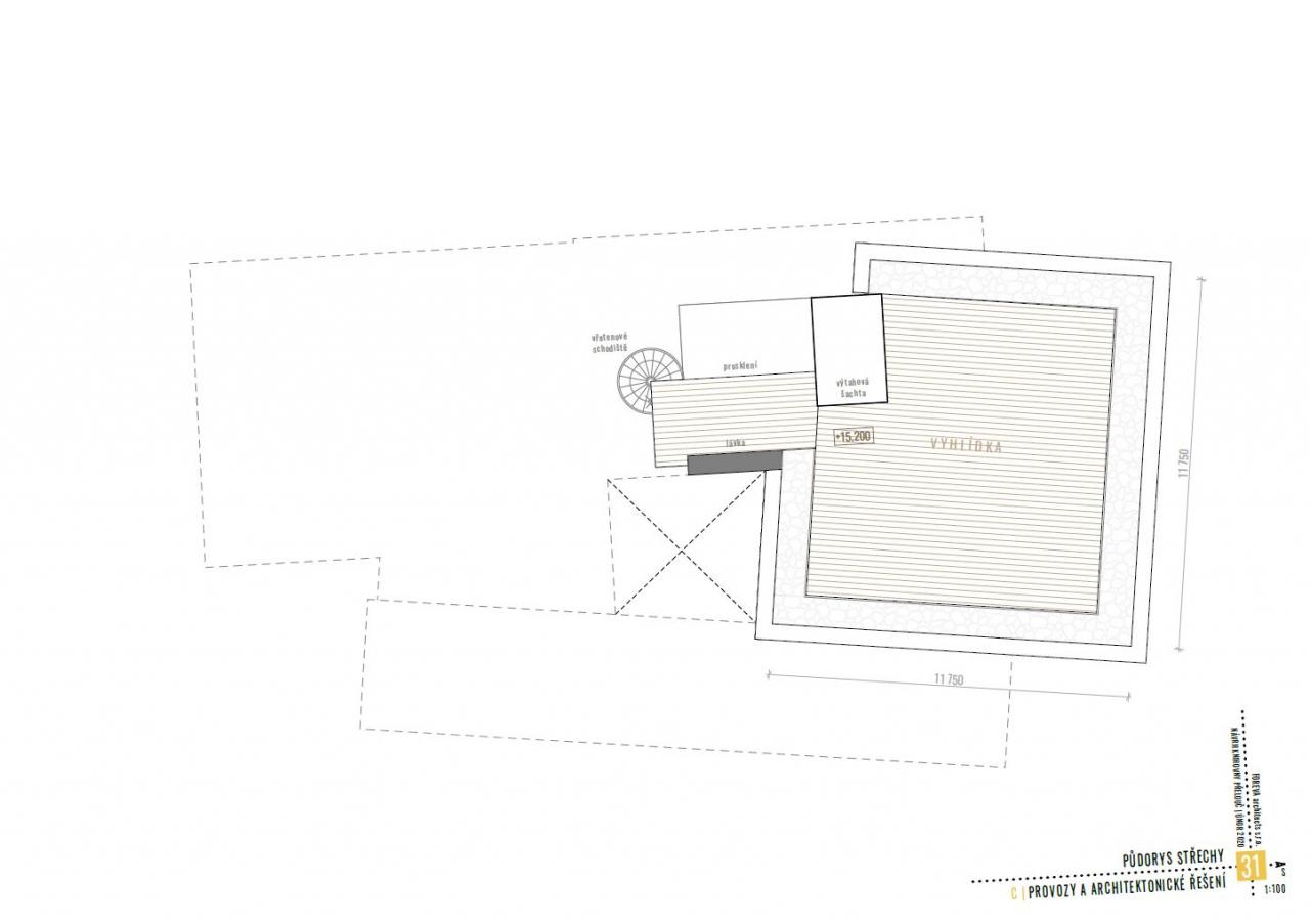
Zprávy a aktuality - Podrobná prezentace návrhu nové budovy městské knihovny

Podrobná prezentace návrhu nové budovy městské knihovny

Prohlédněte si podrobnou prezentaci vítězného návrhu nové budovy městské knihovny architektky Soni Formanové.

Přílohy

Návrh nové budovy městské knihovny

KNIHOVNA PŘELOUČ_FOREVA architects_ÚNOR 2020_soutěžní návrh.pdf
Typ souboru: PDF dokument, Velikost: 248,78 MB
Datum vložení: 9. 3. 2020 16:29
Datum poslední aktualizace: 17. 5. 2021 16:54